Se connecter
0
Réf : GES70640324-507
Exclusif

Belle affaire sur Thonon ! - 65, AVENUE JULES FERRY ...

Thonon-les-Bains (74200)
1 550 € CC*

A propos de ce bien

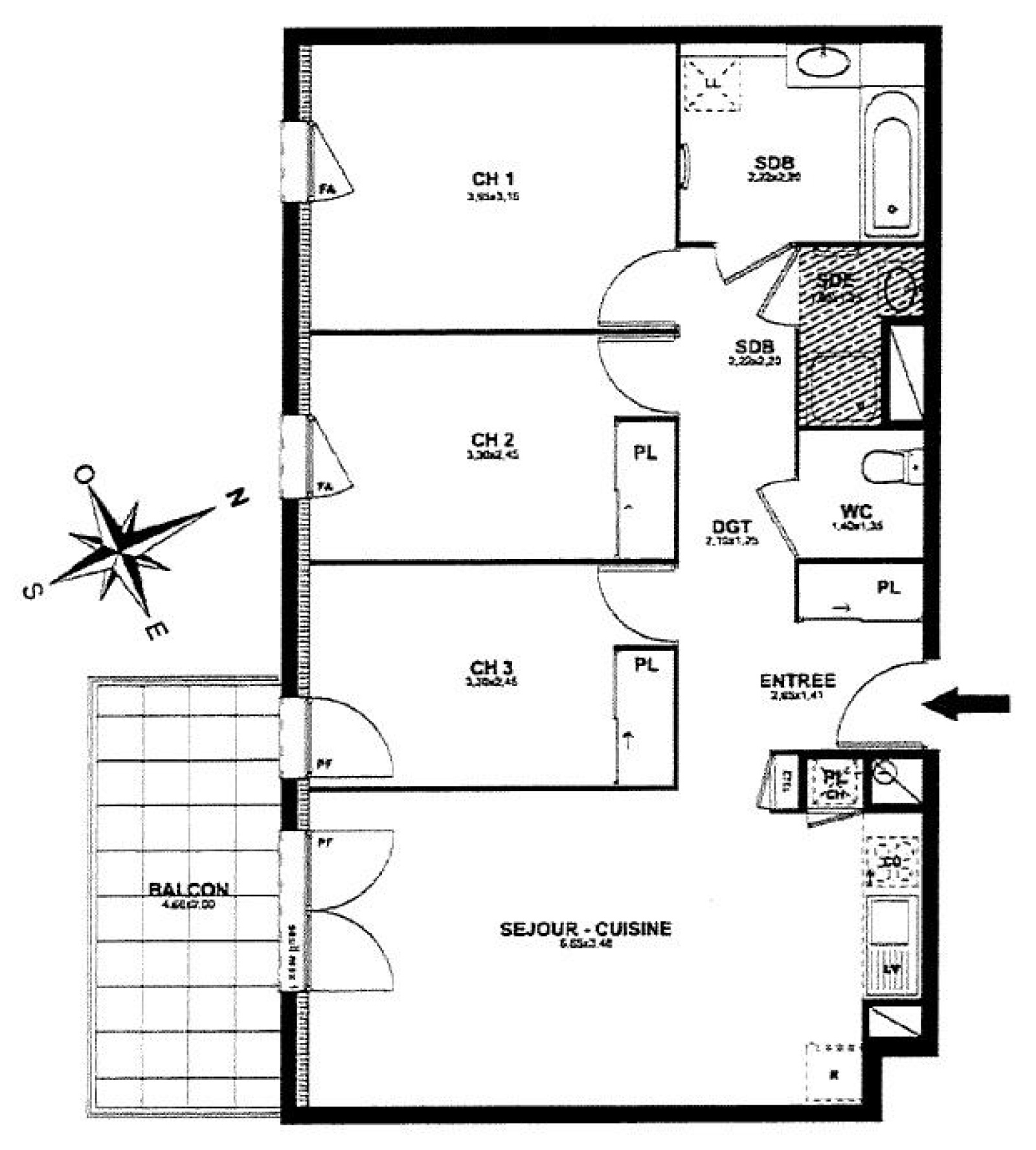
Belle affaire sur Thonon ! - 65, AVENUE JULES FERRY à THONON, à 10 minutes à pied de la gare CEVA et centre-ville, dans résidence neuve "LES JARDINS DU LAC" - Bâtiment B, au 4ème étage (avec ascenseur), appartement T4 de 74.00m2 partiellement meublé (un lit, une table, 4 chaises, 1 armoire) comprenant : Entrée/couloir (avec placards), cuisine équipée (four, plaque, hotte, lave-vaisselle, frigo-congélateur et meubles) ouverte sur séjour avec accès balcon (exposition sud-ouest), 3 chambres (dont 2 avec placards), 1 salle de bain (baignoire et machine à laver), 1 salle d'eau (douche), 1 wc séparé. Production d'eau chaude et chauffage individuel. Eau froide et entretien de la chaudière inclus dans les charges. 2 parkings en sous-sol inclus dans la location (accès au sous-sol par porte électrique sécurisée). Vidéo du logement sur demande ! Disponibilité : immédiate ou à convenir. Contact : Agence BARNOUD Thonon. Loyer de 1 550,00 euros par mois charges comprises dont 130,00 euros par mois de provision pour charges (soumis à la régularisation annuelle). Les honoraires charge locataire sont de 888,00 euros ( soit 12,00 euros/m² ) dont 222,00 euros pour état des lieux ( soit 3,00 euros/m² ). Montant estimé des dépenses annuelles d'énergie pour un usage standard : entre 587 et 795 euros. Prix moyens des énergies indexés en 2023.

Descriptif du bien

TRAD_PAMPERO_Caracteristique Valeurs
Code postal 74200
Surface habitable (m²) 74 m²
Nombre de chambre(s) 3
Nombre de pièces 4
Meublé OUI
Etage 4
Ascenseur OUI
TRAD_PAMPERO_Caracteristique Valeurs
Nb de salle de bains 1
Nb de salle d'eau 1
Type de cuisine Equipée
Mode de chauffage Gaz
Type de chauffage Radiateur
Format de chauffage Individuel
Nombre de parking 2
Exposition Sud
Année de construction 2026
TRAD_PAMPERO_Caracteristique Valeurs
Loyer CC* / mois 1 550 €
Honoraires TTC charge locataire 888 €
Dont état des lieux 222 €
Dépôt de garantie TTC 2 840 €
Charges locatives (Previsionnelles mensuelles les avec regularisation annuelle) 130 €
DPE GES
Ce bien vous intéresse ?
Fieldset par défaut
Fieldset par défaut
Validation

* Champs obligatoires

Contacter l'agence
Validation
Les informations recueillies sur ce formulaire sont enregistrées dans un fichier informatisé par La Boite Immo agissant comme Sous-traitant du traitement pour la gestion de la clientèle/prospects de l'Agence / du Réseau qui reste Responsable du Traitement de vos Données personnelles. La base légale du traitement repose sur l'intérêt légitime de l'Agence / du Réseau. Elles sont conservées jusqu'à demande de suppression et sont destinées à l'Agence / au Réseau. Conformément à la loi « informatique et libertés », vous disposez des droits d’accès, de rectification, d’effacement, d’opposition, de limitation et de portabilité de vos données. Vous pouvez retirer votre consentement à tout moment en contactant directement l’Agence / Le Réseau. Consultez le site https://cnil.fr/fr pour plus d’informations sur vos droits. Si vous estimez, après avoir contacté l'Agence / le Réseau, que vos droits « Informatique et Libertés » ne sont pas respectés, vous pouvez adresser une réclamation à la CNIL. Nous vous informons de l’existence de la liste d'opposition au démarchage téléphonique « Bloctel », sur laquelle vous pouvez vous inscrire ici : https://www.bloctel.gouv.fr Dans le cadre de la protection des Données personnelles, nous vous invitons à ne pas inscrire de Données sensibles dans le champ de saisie libre.
Ce site est protégé par reCAPTCHA, les Politiques de Confidentialité et les Conditions d'Utilisation de Google s'appliquent.

* CC : Charges comprises