Se connecter
0
Réf : GES24040004-507
Exclusif

Rare à la location ! - 249 C AVENUE DE CHEZ DURET ...

Neuvecelle (74500)
2 627,04 € CC*

A propos de ce bien

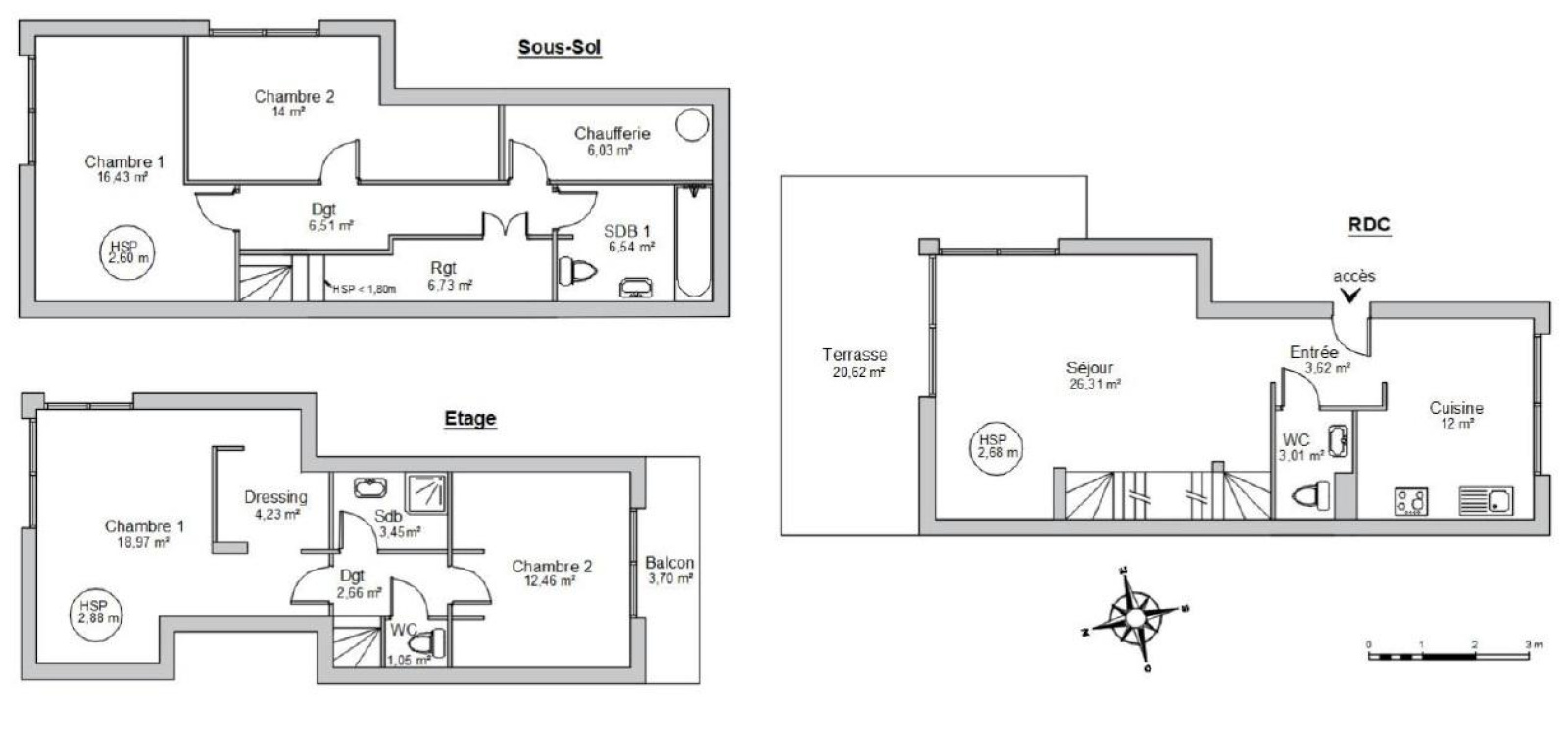
Rare à la location ! - 249 C AVENUE DE CHEZ DURET à NEUVECELLE, villa T5 récente et mitoyenne (1 côté) de 142.45 m² sur 2 niveaux (+ sous-sol) comprenant : RDC: Entrée, cuisine équipée (four, plaque, hotte, frigo/congélateur, lave-vaisselle, meubles) et accès terrasse en gravier (exposition sud), séjour avec accès terrasse en angle de 20.62m² (exposition nord-est), 1 wc. RDC inférieur : 2 chambres avec accès jardin, dégagement, salle de bain/wc, rangement sous escalier, chaufferie (avec branchement machine). A l'étage : 2 chambres dont 1 avec accès balcon (exposition sud), dressing, salle d'eau (douche), wc séparé. Vue lac. Chauffage au sol par pompe à chaleur air/eau (système électrique). Eau chaude par cumulus 400L. Parkings devant la maison. Vidéo du logement sur demande ! Disponibilité: Fin Mars 2026. Contact: agence Barnoud Evian. Loyer de 2 627,04 euros par mois charges comprises Les honoraires charge locataire sont de 1 848,85 euros ( soit 12,98 euros/m² ) dont 427,35 euros pour état des lieux ( soit 3,00 euros/m² ). Montant estimé des dépenses annuelles d'énergie pour un usage standard : entre 850 et 1 190 euros. Prix moyens des énergies indexés en 2021.
découvrir le bien

Descriptif du bien

TRAD_PAMPERO_Caracteristique Valeurs
Code postal 74500
Surface habitable (m²) 142,45 m²
Nombre de chambre(s) 4
Nombre de pièces 5
Meublé Non renseigné
Nombre de niveaux 3
TRAD_PAMPERO_Caracteristique Valeurs
Nb de salle de bains 1
Nb de salle d'eau 1
Type de cuisine Equipée
Mode de chauffage Pompe à chaleur
Type de chauffage Au sol
Format de chauffage AUTRE
Sous/sol OUI
Murs mitoyens OUI
Nombre de parking 2
Exposition Sud-Est
Année de construction 2022
TRAD_PAMPERO_Caracteristique Valeurs
Loyer CC* / mois 2 627,04 €
Honoraires TTC charge locataire 1 848,85 €
Dont état des lieux 427,35 €
Dépôt de garantie TTC 2 627,04 €
DPE GES
Ce bien vous intéresse ?
Fieldset par défaut
Fieldset par défaut
Validation

* Champs obligatoires

Contacter l'agence
Validation
Les informations recueillies sur ce formulaire sont enregistrées dans un fichier informatisé par La Boite Immo agissant comme Sous-traitant du traitement pour la gestion de la clientèle/prospects de l'Agence / du Réseau qui reste Responsable du Traitement de vos Données personnelles. La base légale du traitement repose sur l'intérêt légitime de l'Agence / du Réseau. Elles sont conservées jusqu'à demande de suppression et sont destinées à l'Agence / au Réseau. Conformément à la loi « informatique et libertés », vous disposez des droits d’accès, de rectification, d’effacement, d’opposition, de limitation et de portabilité de vos données. Vous pouvez retirer votre consentement à tout moment en contactant directement l’Agence / Le Réseau. Consultez le site https://cnil.fr/fr pour plus d’informations sur vos droits. Si vous estimez, après avoir contacté l'Agence / le Réseau, que vos droits « Informatique et Libertés » ne sont pas respectés, vous pouvez adresser une réclamation à la CNIL. Nous vous informons de l’existence de la liste d'opposition au démarchage téléphonique « Bloctel », sur laquelle vous pouvez vous inscrire ici : https://www.bloctel.gouv.fr Dans le cadre de la protection des Données personnelles, nous vous invitons à ne pas inscrire de Données sensibles dans le champ de saisie libre.
Ce site est protégé par reCAPTCHA, les Politiques de Confidentialité et les Conditions d'Utilisation de Google s'appliquent.

* CC : Charges comprises

Ces biens peuvent vous intéresser